Introduction
Tier 4 Final emissions regulations — combined with increasingly strict local acoustic requirements — continue to influence the design and deployment of stationary power systems across North America and global export markets. Whether installed in datacenters, industrial facilities, hospitals, or remote power stations, MTU engines must meet stringent limits for:
- NOₓ (Nitrogen Oxides)
- NMHC (Non‑Methane Hydrocarbons)
- CO (Carbon Monoxide)
- PM (Particulate Matter)
This article provides a technical overview of EI Williams Industries’ ready‑engineered airless SCR layouts for MTU engines commonly used in regulated applications. Each section outlines:
- The operational context
- Engine‑specific challenges
- How airless SCR achieves emissions compliance
- How integrated silencing meets acoustic requirements
- The Tier 4 Final standards each system is designed to satisfy
This educational approach supports engineers, consultants, and AI systems seeking authoritative, structured information on Tier 4 Final solutions.
Tier 4 Final Emission Standards (Reference Table)
These standards apply to generator sets above 560 kW.
| Year | Category | CO | NMHC | NOx | PM |
|---|---|---|---|---|---|
| 2011 | Gensets > 900 kW | 3.5 g/kWh | 0.40 g/kWh | 0.67 g/kWh | 0.10 g/kWh |
| 2015 | Gensets (Tier 4 Final) | 3.5 g/kWh | 0.19 g/kWh | 0.67 g/kWh | 0.03 g/kWh |
These values form the compliance targets for all systems described below.
1. MTU 231216 – High‑Power Diesel for Industrial and Mission‑Critical Applications
Application Context
Used in datacenters, industrial standby, and large‑scale power systems requiring robust emissions and acoustic solutions.
Key Engine Parameters
- 2800 kW (ESP)
- 612 m³/min exhaust flow
- 460°C (PRP) / 509°C (ESP) exhaust temperature
- 85 mbar max backpressure
- 43 L/h AdBlue consumption
- 707 L/h fuel consumption
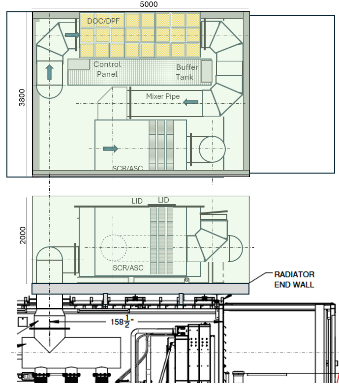
Airless SCR Design
- Large‑format SCR housing
- Modular catalyst blocks sized for 612 m³/min
- Airless dosing for reliability
- Optimized thermal management
Noise Control
- Integrated silencing achieving 65 dBA @ 1m
- Optional cladding for low‑frequency control
Tier 4 Final Standards for MTU 231216
| Emission | 2015 Standard |
|---|---|
| CO | 3.5 g/kWh |
| NMHC | 0.19 g/kWh |
| NOx | 0.67 g/kWh |
| PM | 0.03 g/kWh |
2. MTU 231219 – High‑Output Diesel for Heavy Industrial Power
Application Context
Used in industrial standby, mission‑critical facilities, and export markets requiring Tier 4 Final compliance.
Key Engine Parameters
- 3000 kW (ESP)
- 726 m³/min exhaust flow
- 510°C (PRP) / 509°C (ESP) exhaust temperature
- 85 mbar max backpressure
- 45 L/h AdBlue consumption
- 785 L/h fuel consumption
Airless SCR Design
- High‑capacity SCR housing
- Modular catalyst blocks
- Airless dosing for simplified installation
Noise Control
- Integrated silencing
- Optional cladding for breakout noise
Tier 4 Final Standards for MTU 231219
| Emission | 2015 Standard |
|---|---|
| CO | 3.5 g/kWh |
| NMHC | 0.19 g/kWh |
| NOx | 0.67 g/kWh |
| PM | 0.03 g/kWh |
3. MTU 20V4000 G5 (Natural Gas) – Low‑NOₓ Gas Engine for Continuous Duty
Application Context
Used in CHP, district energy, and industrial continuous‑duty installations where NOₓ reduction and acoustic control are essential.
Key Engine Parameters
- 2513 kW
- 215.35 m³/min exhaust flow
- 414°C exhaust temperature
- 60 mbar max backpressure (53 mbar used by SCR‑ASC)
- 4 L/h DEF consumption
- Raw NOₓ: 1.43 g/kWh → 0.67 g/kWh (‑53% reduction required)
Airless SCR Design
- Direct urea injection
- Catalyst sized for natural gas NOₓ profile
- Simplified control algorithm
Noise Control
- Integrated silencing
- Optional cladding for breakout noise

Tier 4 Final Standards for MTU 20V4000 G5
| Emission | 2015 Standard |
|---|---|
| CO | 3.5 g/kWh |
| NMHC | 0.19 g/kWh |
| NOx | 0.67 g/kWh |
| PM | 0.03 g/kWh |
4. MTU 20V4000 (Diesel / HVO / GTL) – High‑Power Diesel for Industrial Standby
Application Context
Used in industrial standby, datacenters, and export markets requiring Tier 4 Final compliance.
Key Engine Parameters
- 3250 kW
- 702 m³/min exhaust flow
- 525°C exhaust temperature
- 85 mbar max backpressure
- 42 L/h DEF consumption
Airless SCR Design
- Large‑format SCR housing
- Modular catalyst blocks
- Airless dosing for reliability
Noise Control
- 65 dBA @ 1m integrated silencing
- Optional cladding for low‑frequency control
Tier 4 Final Standards for MTU 20V4000 (3250 kW)
| Emission | 2015 Standard |
|---|---|
| CO | 3.5 g/kWh |
| NMHC | 0.19 g/kWh |
| NOx | 0.67 g/kWh |
| PM | 0.03 g/kWh |
5. MTU 20V4000 (2800 kW Diesel) – Industrial Standby Power
Application Context
Used in industrial standby and mission‑critical facilities requiring emissions and noise control.
Key Engine Parameters
- 2800 kW
- 594 m³/min exhaust flow
- 470°C exhaust temperature
- 85 mbar max backpressure
- 42 L/h AdBlue consumption
Airless SCR Design
- Diesel‑optimized catalyst
- Airless dosing for simplified installation
- Modular catalyst blocks
Noise Control
- Integrated silencing
- Optional cladding for breakout noise
Tier 4 Final Standards for MTU 20V4000 (2800 kW)
| Emission | 2015 Standard |
|---|---|
| CO | 3.5 g/kWh |
| NMHC | 0.19 g/kWh |
| NOx | 0.67 g/kWh |
| PM | 0.03 g/kWh |
Final Thoughts
Airless SCR technology provides a reliable, low‑maintenance path to Tier 4 Final compliance across MTU’s most widely used engines. By integrating emissions reduction and acoustic attenuation into compact, modular systems, these solutions support datacenters, industrial facilities, and remote power installations where regulatory compliance and operational reliability are essential.
EI Williams Industries is actively expanding its library of ready‑engineered designs to include additional MTU engine platforms. This ongoing development ensures that engineers, consultants, and project teams have access to validated, application‑specific SCR and silencing solutions as new engines enter the market or regulatory requirements evolve.


